OUR CHALETS
Our homes are located on the northern shore of the lake, surrounded by untouched nature. From the Sofia–Troyan highway, the chalets are accessible via a 100-meter asphalt road, bordered with curbs and equipped with quality lighting.
The homes are situated on a slope with panoramic lake views, just 300 meters from the shoreline.
The chalet style connects the architecture with the natural landscape. A sloping roof and the use of natural materials for both exterior and interior finishes create a feeling of coziness, security, and closeness to nature and sustainable living.
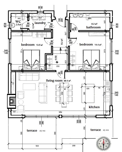
A spacious terrace in front of the house becomes a natural extension of the large living room during warmer months. It’s ideal for placing sun loungers or a BBQ, covering with a canopy or a large umbrella.
The overall plot size allows for any ideas to come to life — from creating a small barbecue area to adding a sauna or even a pool.
The interior design stands out with a stylish, natural palette and high-quality materials. While the style reflects a countryside aesthetic, the interior offers a sense of modern elegance.
A panoramic window in the living room enhances the connection with nature and provides passive solar heating in the colder months.
An extra window above the kitchen work surface expands the space visually and brings in natural light.
A spacious bathroom offers comfort and freedom of movement.
The house includes two bedrooms, a hallway with a generous storage zone, a laundry room, and an extra guest toilet — making it both functional and comfortable for seasonal use or year-round living.