ТЕХНИЧЕСКИЕ ХАРАКТЕРИСТИКИ
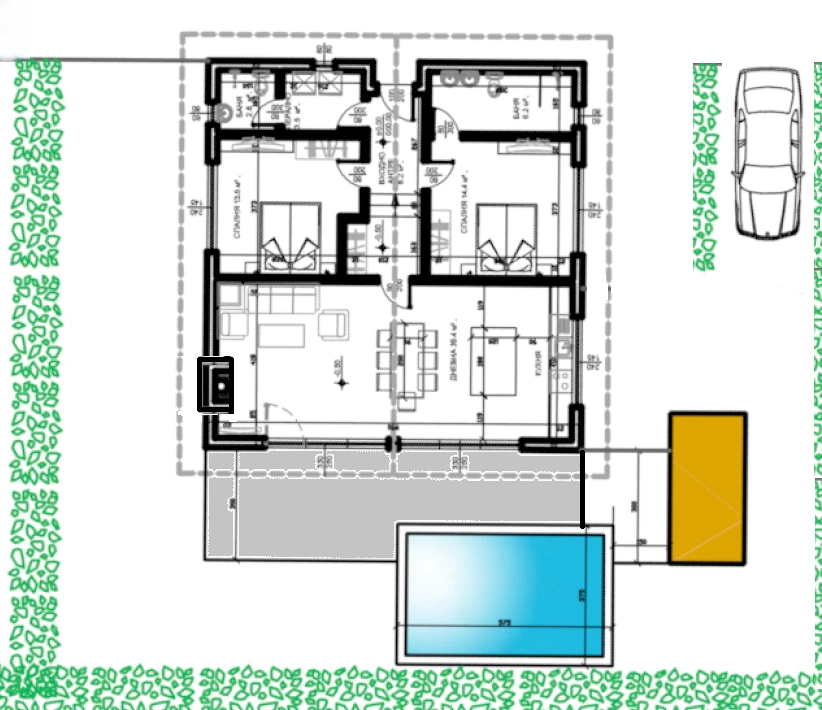
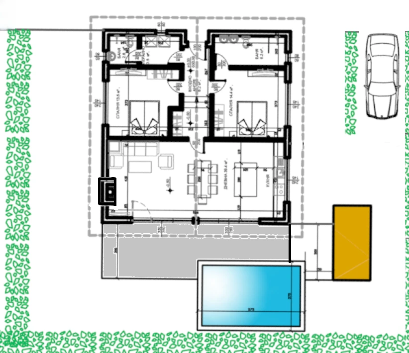
- Площадь всего участка: 500 м², площадь застройки дома: 103 м²
- Асфальтированный подъезд к каждому участку
- Въезд на территорию через автоматические ворота с дистанционным управлением
- Одноэтажное здание, южная ориентация, панорамный вид на озеро
- Фальциваевая кровля с утеплением и вентиляцией
- Фундамент поднят и изолирован
- Железобетонная конструкция с дополнительной гидро- и теплоизоляцией стен и пола
- Кирпич Wienerberger N+F
- Штукатурка Ceresit
- Оконные профили SCHÜCO «4 сезона»
- Панорамное окно в гостиной с раздвижным механизмом
- Возможность монтажа бассейна на участке
- Участок укреплен бетонными сваями
- Система очистки сточных вод вместо обыкновенной септической ямы
- Установлено парковое освещение на внутренних аллеях
- Проложены кабели для охранной системы, видеонаблюдения и высокоскоростного интернета
- Подключены коммуникации (вода, канализация, электричество)