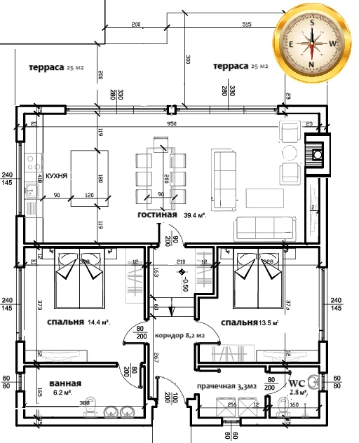
СХЕМА РАСПРЕДЕЛЕНИЯ ПОМЕЩЕНИЙ
Панорамная гостиная с выходом на террасу — 65 м²
Гостиная оснащена двумя большими панорамными окнами с видом на сад и озеро.
Из неё осуществляется выход на деревянную веранду, выполненную из натурального террасного дерева, площадью 25 м².
Терраса поделена на две зоны:
Меблированная зона для ужинов на свежем воздухе
Зона для отдыха, солнечных ванн и релакса у бассейна (в случае его установки)
Окна длиной 3,5 метра открываются на всю ширину стены, объединяя пространство гостиной и террасы. Общая площадь составляет 65 м², что делает это пространство идеальным для круглогодичного использования как единое помещение — светлое, просторное и многофункциональное.
Высота потолков — почти 5 метров, что усиливает ощущение объёма, воздуха и свободы.
Просторная и светлая гостиная — 40 м²
Это сердце дома — место, где семья проводит большую часть времени.
Здесь спроектирована кухня длиной 4 метра с окном, выходящим в зелёный сад.
Рядом — большой кухонный остров (180×200 см), который может служить как дополнительная рабочая поверхность, место для хранения и стол для приёма пищи.
Обеденный стол 180×200 см рассчитан на 6–8 человек — идеально подходит для семейных ужинов и приёма гостей.
Зона отдыха спроектирована с камином и ТВ-зоной: перед камином — два уютных кресла, в ТВ-зоне — два больших дивана, создающих атмосферу уюта и домашнего тепла.
Спальня 1 (мастер-спальня) — 14,4 м²
Главная спальня, вмещающая кровать 180×200 см, большой шкаф 180×280 см, комод и зону отдыха с креслом. Включает собственную просторную ванную комнату с местом под двойную раковину, душевую зону и окном для естественного проветривания, что предотвращает избыточную влажность.
Спальня 2 — 13,5 м²
Позволяет установить двуспальную кровать размером 180×200 см, ТВ-тумбу и гардероб 160×280 см. Отлично подойдёт как гостевая комната или спальня для семьи.
Коридор — 8,2 м²
Просторный и удобный коридор. Здесь предусмотрено место под большой встроенный шкаф, что позволяет освободить дополнительное пространство в жилых комнатах и удобно разместить личные вещи.
Вторая ванная комната с туалетом — 2,7 м²
Компактная, но функциональная, идеально подходит в качестве гостевого санузла. Несмотря на скромные размеры, включает всё необходимое для комфортного использования.
Хозяйственное помещение — 3,3 м²
Удобное помещение, расположенное с северной стороны фасада, предназначено для стирки и сушки белья. Благодаря своему положению изолирует спальню от холодной северной стены. Небольшой объём позволяет быстро прогреть помещение, что делает его идеальным для использования по назначению. Дополнительным плюсом является удалённость от гостиной и зоны отдыха. Наличие открывающегося окна обеспечивает хорошую вентиляцию и приток свежего воздуха