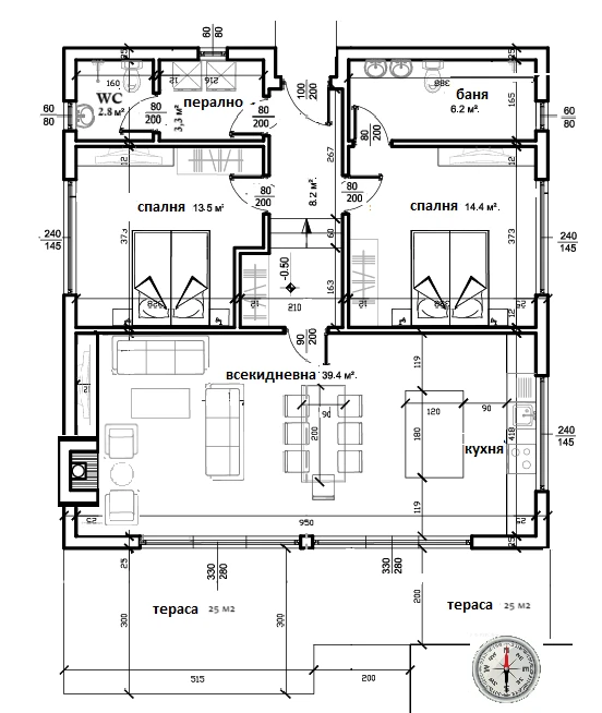
РАЗПРЕДЕЛЕНИЕ НА ПОМЕЩЕНИЯТА
Просторна всекидневна с панорамна гледка и директен излаз към терасата— 65 м²
Всекидневната е с два големи панорамни прозореца с изглед към градината и езерото.
Има директен достъп до дървена веранда от естествена терасна дървесина с площ 25 м², разделена на две зони:
- Обособена зона с мебели за хранене на открито
- Зона за релакс, слънчеви бани и отдих край басейна (в случай на изграждане)
Прозорците с дължина 3,5 метра се отварят по цялата ширина на стената, обединявайки пространството между дневната и терасата. Общата площ от 65 м² създава светло, просторно и многофункционално помещение, подходящо за целогодишна употреба като единно вътрешно-външно пространство.
Височината на таваните достига почти 5 метра, което подсилва усещането за простор и въздух.
Просторна и светла всекидневна— 40 м²
Това е сърцето на дома — мястото, където семейството прекарва най-много време.
Кухня проектирана с дължина 4 метра и прозорец с изглед към градината.
До нея се намира голям кухненски остров (180×200 см), който служи като работна площ, място за съхранение и маса за хранене.
Трапезна маса (180×200 см) за 6–8 души — идеална за семейни вечери и гости.
Зоните за отдих са организирани около камина и телевизора – с два комфортни фотьойла и два големи дивана, които създават уютна и топла домашна атмосфера.
Спалня 1 (главна) — 14,4 м²
Главната спалня побира легло 180×200 см, голям гардероб 180×280 см, скрин и зона за отдих с кресло. Разполага със собствена баня с възможност за двойна мивка, душ зона и прозорец за естествена вентилация, предотвратяващ задържане на влага.
Спалня 2 — 13,5 м²
Предлага възможност за двойно легло 180×200 см, ТВ-място и гардероб 160×280 см. Подходяща както за детска или гостна стая, така и за допълнителна спалня.
Коридор — 8,2 м²
Просторно антре с възможност за вграден гардероб, който освобождава място в другите помещения и осигурява практично съхранение.
Втора баня с тоалетна — 2,7 м²
Компактна, но функционална – идеална за ползване от гости.
Включва всички необходими удобства.
Перално помещение — 3,3 м²
Разположено от северната страна на фасадата – проектирано специално за пране и сушене.
Изолира спалнята от студената северна стена. Лесно се отоплява.
Отдалечеността му от дневната зона и наличието на отваряем прозорец го правят функционално, проветриво и удобно помещение.