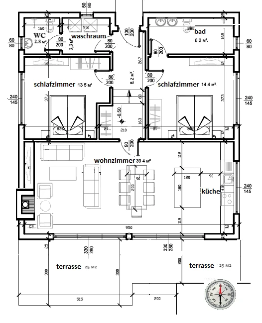
RAUMAUFTEILUNG – SCHEMA
Panorama-Wohnzimmer mit Zugang zur Terrasse – 65 m²
Das Wohnzimmer ist mit zwei großen Panoramafenstern ausgestattet, die einen herrlichen Blick auf den Garten und den See bieten.
Direkter Zugang zur Holzveranda aus echtem Terrassendielenholz mit einer Fläche von 25 m².
Die Terrasse ist in zwei Zonen unterteilt:
- Möblierter Bereich für Abendessen im Freien
- Entspannungszone mit Sonnenliegen und möglicher Poolnutzung (falls installiert)
Fenster mit 3,5 m Länge öffnen sich über die gesamte Breite des Raumes und verbinden Wohnzimmer und Terrasse zu einem einheitlichen, ganzjährig nutzbaren Raum.
Die Raumhöhe beträgt fast 5 Meter und schafft ein großzügiges, luftiges Ambiente.
Großzügiges und lichtdurchflutetes Wohnzimmer – 40 m²
Das Herzstück des Hauses – der Raum, in dem die Familie die meiste Zeit verbringt.
Geplant ist eine 4 Meter lange Küche mit Fenster zum Garten.
Daneben befindet sich eine große Kochinsel (180×200 cm), die als zusätzliche Arbeitsfläche, Stauraum und Esstisch dient.
Ein Esstisch (180×200 cm) bietet Platz für 6–8 Personen – ideal für Familienessen und Gäste.
Der Wohnbereich ist mit Kamin und TV-Zone gestaltet: zwei bequeme Sessel vor dem Kamin und zwei große Sofas in der Fernsehzone sorgen für Komfort und Gemütlichkeit.
Schlafzimmer 1 (Master-Schlafzimmer) – 14,4 m²
Das Hauptschlafzimmer bietet Platz für ein Bett 180×200 cm, einen großen Kleiderschrank (180×280 cm), eine Kommode sowie eine Ruhezone mit Sessel.
Es verfügt über ein eigenes Badezimmer mit Platz für ein Doppelwaschbecken, eine separate Duschzone und ein Fenster zur natürlichen Belüftung – ideal zur Vermeidung von Feuchtigkeit.
Schlafzimmer 2 – 13,5 m²
Ausgestattet für ein Doppelbett (180×200 cm), TV-Möbel und Kleiderschrank (160×280 cm). Perfekt als Gäste- oder Familienschlafzimmer geeignet.
Flur – 8,2 m²
Geräumiger und praktischer Flur mit Platz für einen großen Einbauschrank – ideal zur Entlastung der Schlafzimmer und zum Verstauen persönlicher Gegenstände.
Zweites Bad mit WC – 2,7 m²
Kompakt, aber funktional – eine ideale Gästetoilette mit allen notwendigen Elementen auf kleiner Fläche.
Waschraum – 3,3 m²
Praktisch gelegen an der Nordfassade des Hauses – ideal für Waschen und Trocknen.
Seine Lage isoliert das Schlafzimmer von der kalten Nordseite.
Dank seiner kompakten Größe lässt sich der Raum schnell aufwärmen und effizient nutzen.
Zusätzlich entfernt vom Wohnbereich, mit Fenster für Frischluft und Belüftung.